新闻中心
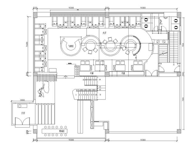
展厅布展设计的重要性在于确保展示内容的连贯性和吸引力如何设计一个高效的内容布局,以有效传达廉政教育的重要性和必要性在盛世笔特集团的展厅设计中如何设计一个高效的内容布局,我们将内容组织和展示方式视为关键要素,以确保参观者能够流畅地理解廉政教育的核心概念首先,我们注重展示内容的逻辑顺序和连贯性通过精心设计的布局,我们将廉政教育的核心信息。
四文化交互,展厅需融入地方特色展厅设计需要与环境融合,尤其是企业当地的文化融合,例如一个企业所在区域有很多民族,或是有历史沉淀的文化底蕴存在地方特色,展厅设计公司就需要把融入地方的特色,做好文化的交互这样可以让参观者获得熟悉的元素,进入展厅展馆不感觉陌生,慢慢的归属感,从而获得好的。
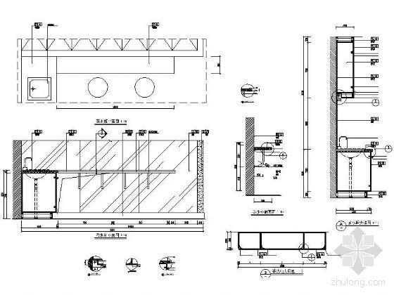
布局是展厅设计的主要内容运用粗重轻柔不一的材料,恰当合宜的色彩及造型各异的物质设施,对空间界面及柱面进行错落有致的划分组合,创造出一个使顾客从视觉与触觉都感到轻松舒适的展示空间展厅设计中可以采用运动中的物体或形象,不断改变处于静止状态的空间,形成动感景象打破展厅内拘谨呆板的静态格局。

使用网格可以更好地解决元素在页面中的定位问题,从而更准确地进行布局规划,同时使用网格也可以使布局设计更高效在网页中,和谐的视觉美也可以通过一系列的重复和固定的间隔来构建,比如一些字体的大小和间距,模块之间的距离等等在任何空间或界面的不同层面九游官网,内容的组织结构和元素都是存在的,而视觉。
